Gran dúplex en planta baixa amb pati per a llogar
Avui us portem un sensacional baix dúplex per a lloguer, al centre de Mataró, a escassos metres de la plaça de Cuba amb tots els serveis (restauració, supermercats, farmàcies, escoles) a mà. I a 500 metres de la platja i el passeig marítim de la ciutat.
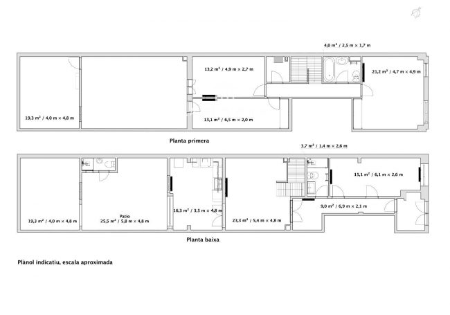
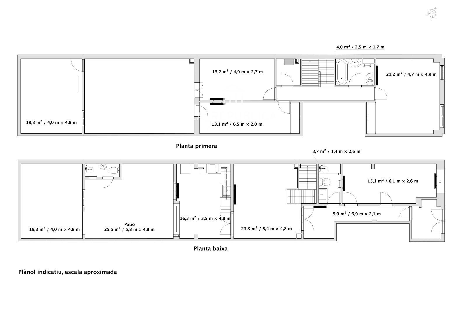
Atenció l’entrada a la propietat està prevista per al setembre de 2022.A pocs minuts del centre de la ciutat ens trobem amb aquest dúplex de grans dimensions 177 m² construïts i 152 m² útils.A la planta baixa disposem d’una habitació doble amb finestra a carrer, bany amb plat de dutxa, rebedor amb passadís que ens porta al saló menjador des del qual podem accedir mitjançant unes escales a planta superior o a la gran cuina office amb sortida a pati. Un pati magnífic on gaudir a l’aire lliure amb amics i família. En aquest pati descobrim també un altre bany amb plat de dutxa, una zona porxada amb escales que ens donen accés a una altra habitació equipada amb aire condicionat, ideal com a habitació de convidats o despatx.A planta superior, hi ha la zona de nit de l’habitatge. Amb una habitació triple amb armaris encastats amb finestra i balcó a carrer. Bany amb banyera. I dues habitacions dobles de forma rectangular, una d’elles amb armari encastat. Totes dues disposen de sortida a un balcó amb vistes al pati de la planta baixa.Un immoble equipat amb terres de gres, tancaments exteriors d’alumini amb vidre doble, sistema de calefacció per aerotèrmia, cuina amb vitroceràmica.Pel que fa a les condicions, són les següents:- Preu tancat, total mensual 1.300 €. No és negociable.
– Contracte de cinc anys.
– No s’accepten animals de companyia.
– Es requereixen nòmines per estudi de viabilitat de l’operació.
– Dos mesos de fiança (2.600 €), dipositats a INCASÒL.
– Un mes d’honoraris d’agència + IVA (1.573 €)
No deixeu escapar l’oportunitat de viure al centre de la ciutat en un dúplex magnífic
Atenció l’entrada a la propietat està prevista per al setembre de 2022.A pocs minuts del centre de la ciutat ens trobem amb aquest dúplex de grans dimensions 177 m² construïts i 152 m² útils.A la planta baixa disposem d’una habitació doble amb finestra a carrer, bany amb plat de dutxa, rebedor amb passadís que ens porta al saló menjador des del qual podem accedir mitjançant unes escales a planta superior o a la gran cuina office amb sortida a pati. Un pati magnífic on gaudir a l’aire lliure amb amics i família. En aquest pati descobrim també un altre bany amb plat de dutxa, una zona porxada amb escales que ens donen accés a una altra habitació equipada amb aire condicionat, ideal com a habitació de convidats o despatx.A planta superior, hi ha la zona de nit de l’habitatge. Amb una habitació triple amb armaris encastats amb finestra i balcó a carrer. Bany amb banyera. I dues habitacions dobles de forma rectangular, una d’elles amb armari encastat. Totes dues disposen de sortida a un balcó amb vistes al pati de la planta baixa.Un immoble equipat amb terres de gres, tancaments exteriors d’alumini amb vidre doble, sistema de calefacció per aerotèrmia, cuina amb vitroceràmica.Pel que fa a les condicions, són les següents:- Preu tancat, total mensual 1.300 €. No és negociable.
– Contracte de cinc anys.
– No s’accepten animals de companyia.
– Es requereixen nòmines per estudi de viabilitat de l’operació.
– Dos mesos de fiança (2.600 €), dipositats a INCASÒL.
– Un mes d’honoraris d’agència + IVA (1.573 €)
No deixeu escapar l’oportunitat de viure al centre de la ciutat en un dúplex magnífic
- M2 Construits
- Dormitoris:
- Banys
- Cuina Office
- Calefacció
- Alçada/Planta
- Estat
- Tipus de terra
- Qualificació Energètica
- Llum
- Gas
- Aigua
- 177.00
- 5
- 3
- No
- Aerotèrmia
- 00
- Bo
- Gres
- E
- Si
- 0
- Si
T'agradaria concertar una visita o tens dubtes?
Per a més informació deixa’ns les teves dades i un assessor es posarà en contacte el més aviat possible.











































